Outside Deck/Walkway to Upper Deck
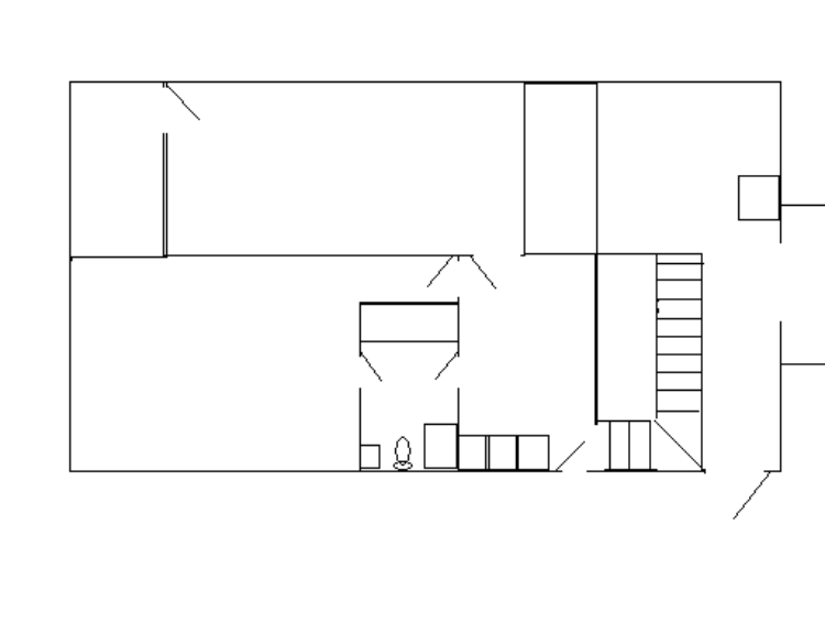
Lower Level
Master with King Bed, 32" cable TV,
DVD,
 Crib, Microwave, Sofa,
Loveseat/Hide-a-bed.  2 twin
mattresses stored in closet for use if
needed.
Storage
Game Room with Table Tennis, Dart Board,
Poker Table,
Cable TV, Play Station, Seating
and Full size Refrigerator
Laundry Room,
access to Elevator
 
Outdoor
Shower
Covered Outdoor Tiki Room
Elevator
Closet
Full Bath
Shower
Sink  Washer   Dryer
Owner
Storage
Steps
Hot Tub
Area
Shower
Bedroom with Queen
Bed, 2
7" Cable TV
Bedroom with Queen
Bed, 2
7" Cable TV'
Living Room with 51" Cable TV,
DVD, VCR, Surround Sound, Stereo,
Seating
Elevator
Full Bath
Master 2 with King Size Bed, 32"
Cable TV,
DVD, Crib, Full Bath
with Shower.  Trundle stored in
closet for use in any room.
Master 3 with King Size Bed,
32" Cable TV, DVD, Full Bath
with Tub
Ref
Full Bath
Full Bath
.

B
A
R
Fully
Equipped
Kitchen
Dining Table
Upper Level
Walkway
Steps to 12' x 12'  roof top deck
More photos and updated photos coming soon!
Scroll down to view upper level floor plans
Front
covered
deck with
seating